Company Information

Onetradepark  >  Graphic Design And Animation Services  >  Cad Conversion Service  >  2d To 3d Conversion

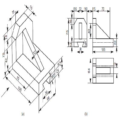
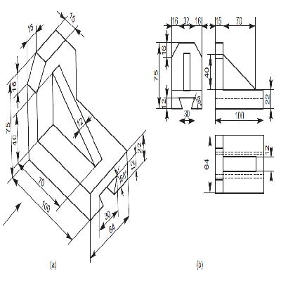
2D To 3D Conversion

₹ Rs 1,000 / Piece/

no more post

Find products similar to 2D To 3D Conversion near Delhi

Customer Reviews

No reviews yet
Be the first to rate this product.